Skip to main content
Johnny Umans

Staalskelet laat vrije planinvulling toe

Eengezinswoning in de Denderstreek

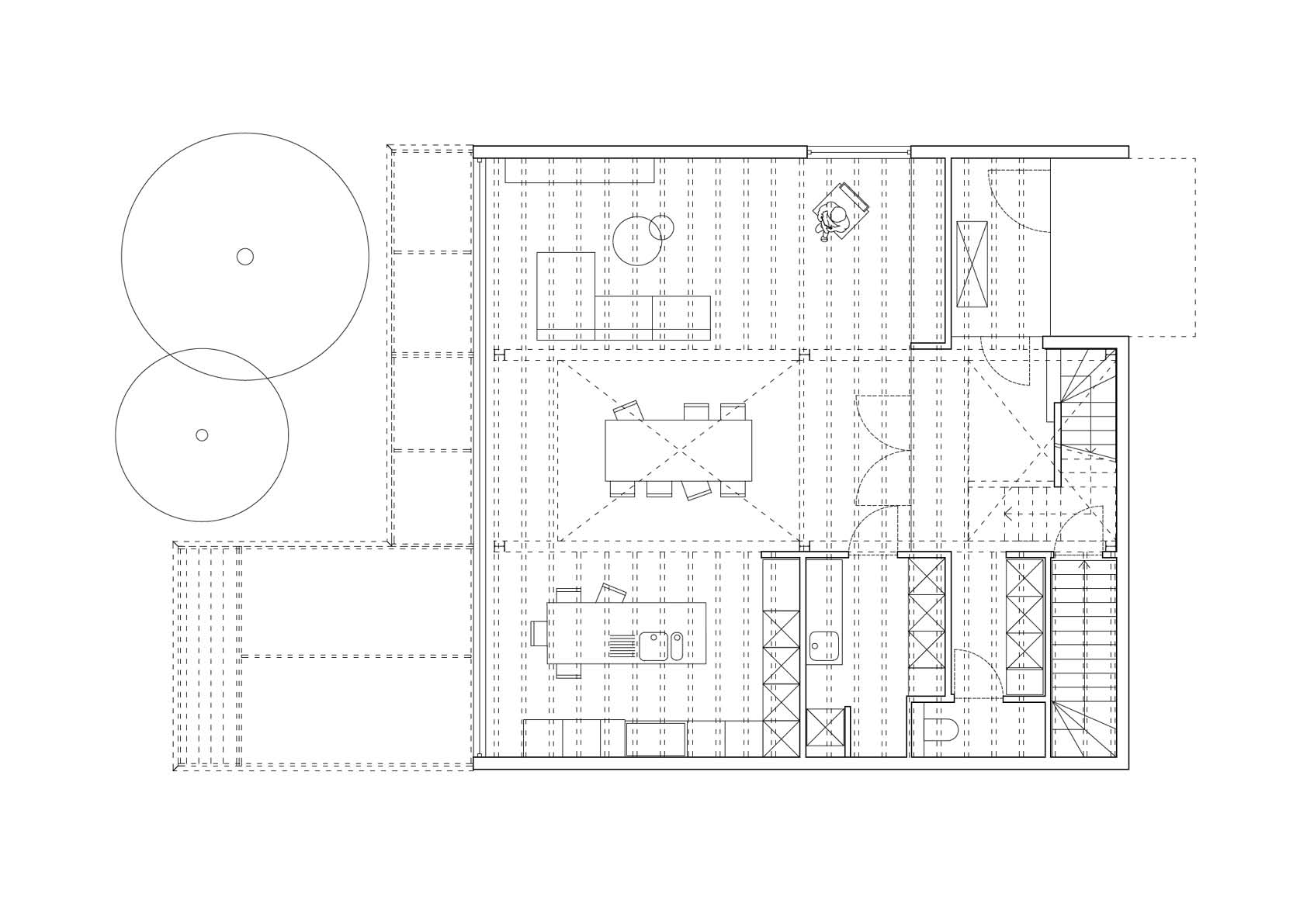
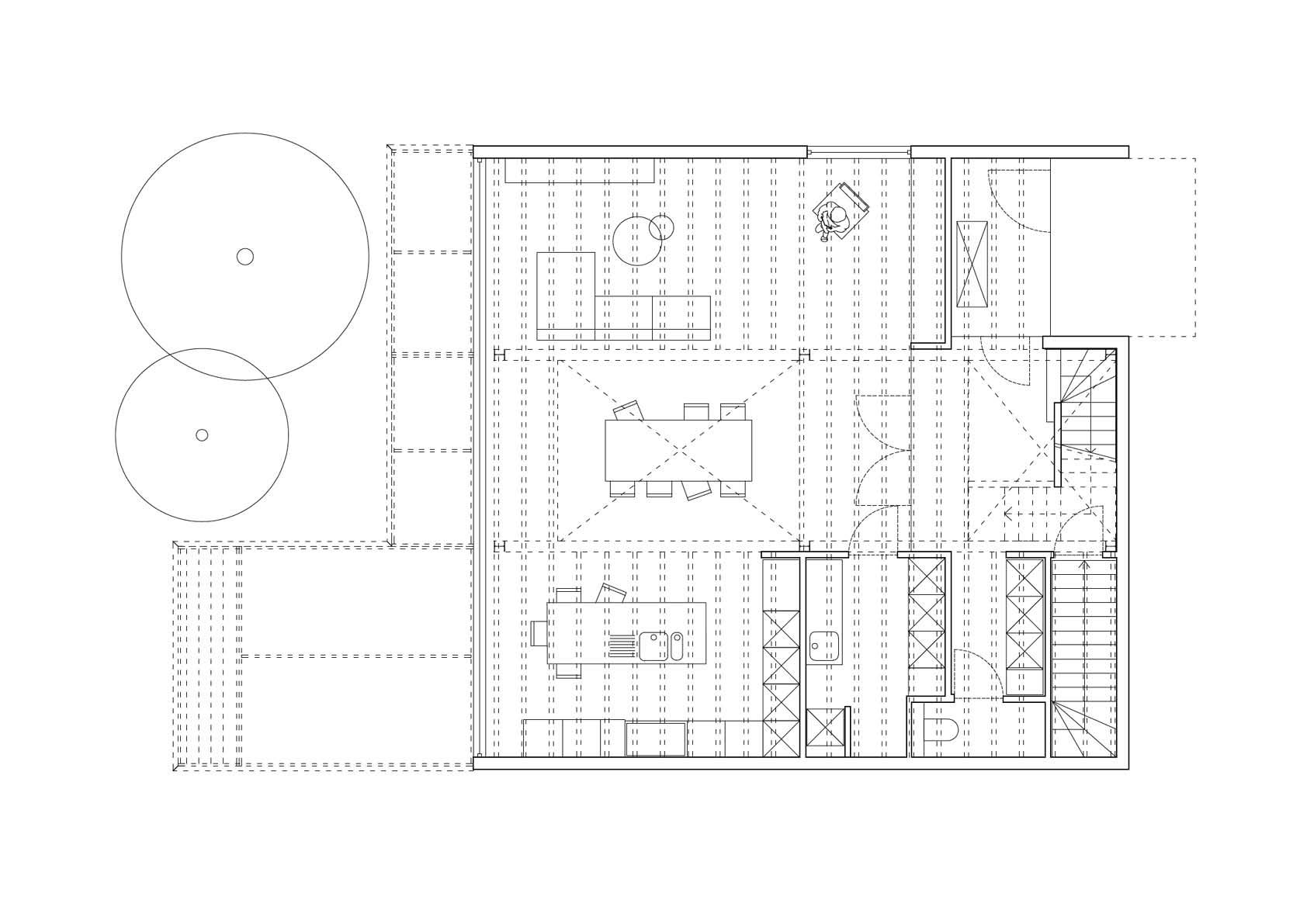
Deze nieuwbouw eengezinswoning in de Denderstreek is opgebouwd met een staalskelet, ingevuld met houten vloeren en lichte gipskartonwanden. Daaromheen is een bakstenen buitenschil aangebracht. Opmerkelijk is dat de gebruikte materialen zichtbaar bleven. De bakstenen muren van de schil en de houten balken van de invulvloeren contrasteren met de donker geschilderde organiserende staalconstructie.

Door te werken met een open plan en een dubbelhoge vide zijn boven en beneden visueel met elkaar verbonden. Een open plan, georganiseerd door het raster van de stalen kolommen, laat een vrije invulling toe. Grote raampartijen aan de achterzijde zorgen voor een connectie met de grote tuin erachter. Het transparante geoliede hout van de plafonds contrasteert met het donker geverfde stalen skelet en de balustrades om ze weg te houden van een al te industriële connotatie. Deze balustrades bestaan uit stalen kaders die zijn opgevuld met strekmateriaal.

  • Privé
    Plaats
  • Privé
    Opdrachtgever
  • Luchtschip Architectuur, Gentbrugge
    Architect / Ontwerper
  • Vesting, Sint-Amandsberg
    Studiebureau (stabiliteit)
  • Bovy Gilles GCV, Appelterre-Eichem
    Hoofdaannemer
  • Verbeeren Metaalwerken, Roosdaal - STS Engineering, Sint-Laureins
    Staalbouwer
  • Johnny Umans
    Foto