Verbindingen & detaillering
- Inleiding
- Classificatie van verbindingen volgens stijfheid
- Classificatie van verbindingen volgens uitvoering
- Onderdelen van een staalverbinding
- Meer info...
Inleiding
Constructief gezien moeten aan verbindingen drie eisen worden gesteld :
- Sterkte: Een verbinding moet voldoende sterk zijn. De krachten die op een verbinding werken, moeten kunnen worden opgenomen.
- Stijfheid: Een verbinding moet overeenkomen met de aannames in het rekenmodel. In het gebruiksstadium en in het bezwijkstadium mogen de vervormingen een bepaalde waarde niet overschrijden.
- Rotatiecapaciteit: Wanneer er plastische scharnieren in de constructie ontstaan nog voor dat de totale belasting is aangebracht, moeten deze "scharnieren" bij toenemende belasting kunnen roteren.
Classificatie van verbindingen volgens stijfheid
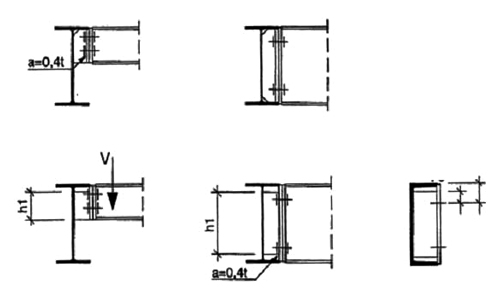
Scharnierende verbinding
Wat is een scharnierende verbinding?
- Enkel overdracht van dwars- en normaalkrachten, geen momenten
- In staat om rotaties te ondergaan resulterend uit de effecten van de berekende lasten.
Wanneer wordt dit gebruikt?
- Doorgaans in geschoorde of ondersteunde constructies;

Hoe ziet een scharnierverbinding er uit?
- Dunne kopplaten en hoekstalen
- Kleine afstand tussen bouten
Ligger-kolom

Kopplaatverbinding

Hoekstalen

Doorkoppelingen
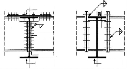
Momentverbinding
Wat is een momentverbinding?
- Verbindingen in staat om momenten op te nemen.
- Beschikken over een voldoende rotatiestijfheid, om de structuur te berekenen alsof ze continu is.
Wanneer maakt men gebruik van momentverbindingen?
- In ongeschoorde constructies;

Hoe ziet een momentverbinding eruit?
- Ligger-kolom
- Grotere of dikkere kopplaat
- Een schoor
- Grote afstand tussen de bouten


- Doorkoppeling (ligger-ligger)

Semi-momentverbindingen
- Een verbinding die noch aan de criteria voldoet van een scharnierende noch een momentverbinding.
- Houdt rekening met een zekere interactie tussen de verschillende staven volgens de moment-rotatie in berekeningen
- Kan bepaalde bewegingen overbrengen
Classificatie van verbindingen volgens uitvoering
De keuze hangt af van verschillende aspecten;
- De mogelijkheden van fabricatie en montage
- De prijs
- De aangebrachte krachten
- De architecturale eisen
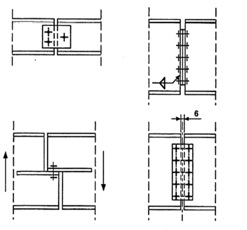
Boutverbindingen
Economische aspecten
- Zeer arbeidsintensief. Beter enkele zware bouten aanbrengen dan vele kleine.
- Geen te zware bouten nemen -> machines nodig om deze aan te draaien.
- Aangeraden overal dezelfde bouten te gebruiken (indien mogelijk). -> eenvoudiger op de werf als in het atelier!
- Gebruik standaard bouten!
Vaak gebruikte bouten
- schroefbouten
- voorspanbouten
- injectiebouten
- voor meer informatie zie www.fabory.com
Lasverbindingen
Economische aspecten
- Lassen moeten voldoende sterk en zwaar zijn om aan de krachten in de verbinding te kunnen weerstaan
- Vaak manueel aangebracht > zeer duur
- Het lassen beperken op de werf -> eenvoudiger om aan te brengen in het werkhuis
- Het is aangeraden de lassen te beperken en te vervangen door:
- Hoekstaalverbindingen
- Scharnierverbindingen
- Kikkerverbindingen

Soorten lassen
- Hoeklassen

- Verzonken hoeklas

- (c) verzonken hoeklas
- (d) (versterkte) uitgewaaierde verzonken hoeklas
- Stompe lassen

- (a) Zonder spleet
- (b) met spleet
- Meer informatie: Belgisch Instituut voor Lastechniek
Onderdelen van een staalverbinding
- Lassen (zie hierboven)
- Bouten (zie hierboven)
- Kopplaten

- Consoles

- Verstijvingen/schotten

- Afdekplaten

Meer info...
- Knopen – Bouwen met Staal
- Verbinden – Bouwen met Staal
- Steel Detailers' Manual (second edition) - Alan Hayward, Frank Weare - Blackwell Science
- Guide to Site Welding - Welding - P. Craddock - The Steel Construction Institute
- Moment Connections - Joints in Steel Construction - The Steel Construction Institute - BCSA
- Composite Connections - Joints in Steel Construction - The Steel Construction Institute - BCSA
- Design of Composite Joints for Buildings N° 109 - ECCS- Technical Committee 11 - Composite Structures
- Connections and Frame Design for Economy N° 77 - ECCS- Technical Committee 10 - Structural- Connections Technical Working Group 10.2 - Semi-rigid Connections
- Boutverbindingen - Technologisch Instituut KVIV
- Bevestigingstechnologie- catalogus Fabory
- Belgisch Instituut voor Lastechniek
- Normen -antenne 'Lastechniek' van het Belgisch Instituut voor Lastechniek
- Hoeklassen vs. Stompe lassen - Wim Hoeckman, Directeur Victor Buyck Steel Construction, Eeklo - Docent Vrije Universiteit Brussel - Technisch artikel in staal_acier nr 5 pag. 8-14 (Staalinfocentrum (Infosteel) - december 2004)
- Snijden van buizen. Complexe knopen steeds efficiënter maken - ing. Frank De Groot - Technisch artikel in staal_acier nr2 pag. 42-45 (Staalinfocentrum (Infosteel) - maart 2004)